JR横浜線「八王子みなみ野」駅徒歩16分
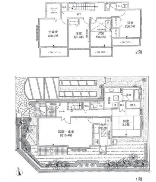
価格:4,980万円、5LDK、土地面積:195.01平米、建物面積:148.87平米
閑静な住宅に立地しています。 落ち着いた環境での生活を過ごすことができそうですね。
小中学校は徒歩圏内にありますので、お子様を安心して学校に見送ることができそうですね。
周囲に高い建物がないため、陽当り良好です! 落ち着いた暮らしが叶う閑静な住宅地です。
前面道路は車通りも少ないので駐車が苦手な方でも安心して駐車していただけます。
敷地面積58坪超え!全室南向きの5LDK!
外観
外観
外観
前面道路含む現地写真
前面道路含む現地写真


横浜線 八王子みなみ野駅 徒歩 16分
京王高尾線 山田駅 徒歩 34分
中央本線(東日本) 八王子駅 バス 10分 「上小比企」 停歩 23分
・角地につき、開放感あり!陽当り良好!
・土地面積55坪超えの大型5LDK!
・JR横浜線「八王子みなみ野」駅徒歩16分!
横浜線 八王子みなみ野駅 徒歩 16分
京王高尾線 山田駅 徒歩 34分
中央本線(東日本) 八王子駅 バス 10分 「上小比企」 停歩 23分
みなみ野君田小学校 約535m
みなみ野中学校 約879m