八王子市犬目町 貸倉庫
中古一戸建て
閲覧済み
犬目町 八王子駅 バス 24分 「中犬目」 停歩 7分 830万円
- おすすめ
- NEW
- 価格変更
- 会員限定
交通
中央本線(東日本) 八王子駅 バス 24分 「中犬目」 停歩 7分横浜線 八王子駅 バス 24分 「中犬目」 停歩 7分
京王線 京王八王子駅 バス 26分 「中犬目」 停歩 7分
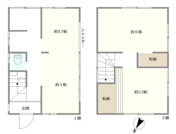
間取り
4K築年月
1978年04月完成建物面積
52.16㎡(15.77坪)土地面積
102.91㎡(31.13坪)
- 外観
- JR中央線「八王子」駅バス24分停歩7分

- 間取図/区画図
- オーナーチェンジ物件!土地面積:102.91平米、建物面積:52.16平米
- POINT
- ・賃料55,000円で賃貸中のオーナーチェンジ物件です!
・1階部分は土間コンクリート仕上げになります!
・JR中央線「八王子」駅バス24分停歩3分!
犬目町 八王子駅 バス 24分 「中犬目」 停歩 7分 830万円
交通
中央本線(東日本) 八王子駅 バス 24分 「中犬目」 停歩 7分横浜線 八王子駅 バス 24分 「中犬目」 停歩 7分
京王線 京王八王子駅 バス 26分 「中犬目」 停歩 7分
間取り
4K築年月
1978年04月完成建物面積
52.16㎡(15.77坪)土地面積
102.91㎡(31.13坪)| 物件名称 | 八王子市犬目町 貸倉庫 |
|---|---|
| 価格 | 830万円 |
| リフォーム | あり |
| リノベーション | なし |
| 所在地 | 東京都八王子市犬目町地図 |
| 交通 | 中央本線(東日本) 八王子駅 バス 24分 「中犬目」 停歩 7分 横浜線 八王子駅 バス 24分 「中犬目」 停歩 7分 京王線 京王八王子駅 バス 26分 「中犬目」 停歩 7分 |
| 間取り | 4K |
| 建物現況 | 完成済 |
| 建物面積 | 52.16㎡(15.77坪) |
| 土地面積 | 102.91㎡(31.13坪)[公簿] |
| 地目 | 宅地 |
| 土地権利 | 所有権 |
| 築年月 | 1978年04月完成 |
| 建物構造 | 木造(W) |
| 建物階建 | 2階建 |
|---|---|
| 駐車場 | あり 3台 |
| 都市計画 | 市街化区域 |
| 用途地域 | 第一種低層住居専用地域 |
| 建ぺい率/容積率 | 40%/80% |
| 国土法の届出 | 不要 |
| セットバック | あり |
| 私道負担 | なし |
| 接道状況 | 二方 南東:幅員5.0m公道 北西:幅員4.5m私道 |
| 引渡時期 | 相談 |
| 備考 | 住宅ローン相談随時受付中。住宅購入に関わる全てのご不安解消します。 |
| 物件情報更新日 | 2026年02月10日(物件情報更新日より14日以内に更新) |
| 物件コード | 71156 |
| 取引態様 | 売主 |
- 地図アクセス
この物件のお問い合わせ先
株式会社マトリックスレジデンシャル
お電話でのお問い合わせ
0120-882-340
〒192-0053
東京都八王子市八幡町14-16
- [ TEL ]
- 042-624-2788
- [ FAX ]
- 042-624-0672
- [ 営業時間 ]
- 9:00~18:00
- [ 定休日 ]
- 火曜日・水曜日
- [ アクセス ]
- JR中央線、八王子駅から徒歩12分、「八幡町」交差点そばが私たちセンチュリー21マトリックスレジデンシャルのお店です。いつでもみなさまのご来店をお待ちしておりますので、気兼ねなくお越しください!
電車でお越しの方
JR中央線「八王子」駅徒歩12分 京王線 京王八王子駅徒歩15分 バスをご利用の場合「八日町4丁目」バス停が便利です。
お車でお越しの方
国道16号と甲州街道が交わる交差点が「八幡町」交差点です。 付近には「ペットのコジマ」「エコス大横町店」「仏壇の岡田屋」がございます。お近くまでお越しの際は、一時停車の上弊社までお電話ください。最寄り駐車場までご案内いたします。
条件に近い物件
- 一部、完成後1年以上を経過した未入居物件が新築物件として掲載される場合がございます。
- 敷地権利が定期借地権のものは価格に権利金を含みます。
- 完成予想図はいずれも外構、植栽、外観等実際のものとは多少異なる場合がございます。
- CG合成の画像の場合、実際とは多少異なる場合がございます。
- 図面と現況が異なる場合には現況を優先いたします。
- 地積、建物床面積、仕様に変更が生じる場合がございます。
- 物件情報は最新のものをご提供させていただきますが、万一売約済の場合はご容赦ください。
- 建築条件付土地の販売は、売買契約後一定期間内に売主との間で建築請負契約を結ぶことが条件となり、この期間内に建築請負契約が成立しない場合は、受領金を全額返済した上で土地売買契約は白紙となります。
- 掲載物件の取引態様が「仲介」「一般」「専属」「専任」となっているものは、ご成約の際に規定の手数料及びそれに係わる消費税を別途申し受けます。
- 間取り表示のSはサービスルーム(納戸)の略称です。WICはウォークインクローゼット、DENは書斎の略称です。
- 参考プランは、土地の購入者の設計プランの参考に資するための一例であって、参考プランを採用するか否かは土地購入者の自由な判断に委ねられます。


