八王子みなみ野駅の不動産物件一覧

現在の検索条件を見る

  • 路線・駅:JR線横浜線八王子みなみ野

1件1〜1件を表示

Thumb d3632323bb
Thumb c8ea6c3078

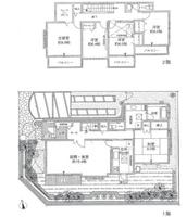
八王子市みなみ野 中古戸建

東京都八王子市みなみ野4丁目29-10

横浜線 八王子みなみ野駅 徒歩 16分

築年月:2000年10月完成

間取り面積価格検討中
5LDK土地 195.01㎡
建物 148.87㎡
5280万円{{buttonLabel}}

1件1〜1件を表示